Mirador
02 • Mirador
01.2020
Le projet Mirador consiste en une proposition de rénovation d’un hôtel historique à St Cergue : Le « Grand Hôtel Observatoire St Cergue » situé dans une petite ville du massif montagneux du Jura. C’est après de nombreuses transformations dans la années 70 que l’hôtel est désormais quasi à l’abandon. Le cadre du lieu est pour le moins exceptionnel, perché sur un promontoire qui lui offre une vue imprenable sur le lac Léman.
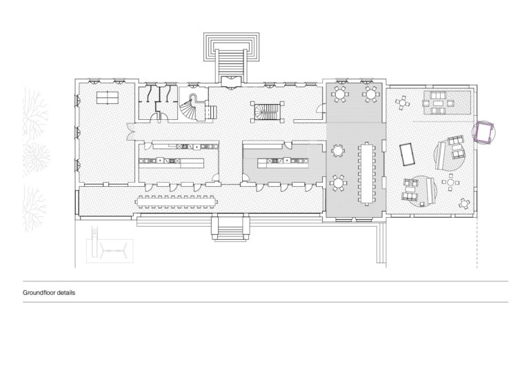
Le rez-de-chaussée, le jardin et le sous-sol de l’édifice sont les lieux qui restent à exploiter.
Une phase de recherche fu primordiale et nous a permis de repenser l’espace dont le programme s’oriente vers la vie en communauté. Un partage intergénerationnel permis par des espaces de vie communs où chacun se croise, discute, s’entraide. C’est sur ce modèle d’une société nouvelle basée sur le partage que nous avons imaginé trois niveau de privacité. Le toit de l’édifice réservé au tourisme, il est entièrement public et permet de profiter de la vue sur le lac. Des endroit semi-privés comme les pièces de vie : cuisine, salon, salle de repas. Puis les chambres et salles de bains qui constitue des lieux ou l’on peut retrouver une certaine forme de privacité. Nous avons choisi dans notre proposition d’associer les caractéristiques historiques du bâtiments : ses moulures, bois précieux… avec des matières et des couleurs contrastantes créant ainsi un lien entre histoire et modernité.
Réalisation Camille Maingret, Alain Van Garderen, Tina Felix
Atelier dirigé par Leonid Slonimskiy
Assisté par Bertrand Van Dorp




